Find Property:
Das Projekt
Studentenwohnung
Skylines im Eigentum
Offices
Systemhausbau
Home
Das Projekt
Wohnungsnavigator
Wohnungsübersicht
Dokumente / Pläne
Kontakt
Home
Das Projekt
Wohnungsnavigator
Wohnungsübersicht
Dokumente / Pläne
Kontakt
Home
Das Projekt
Wohnungsnavigator
Wohnungsübersicht
Dokumente / Pläne
Kontakt
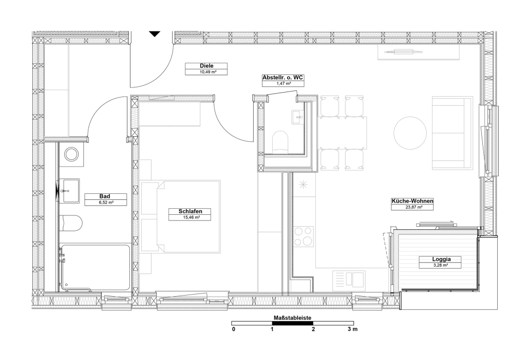
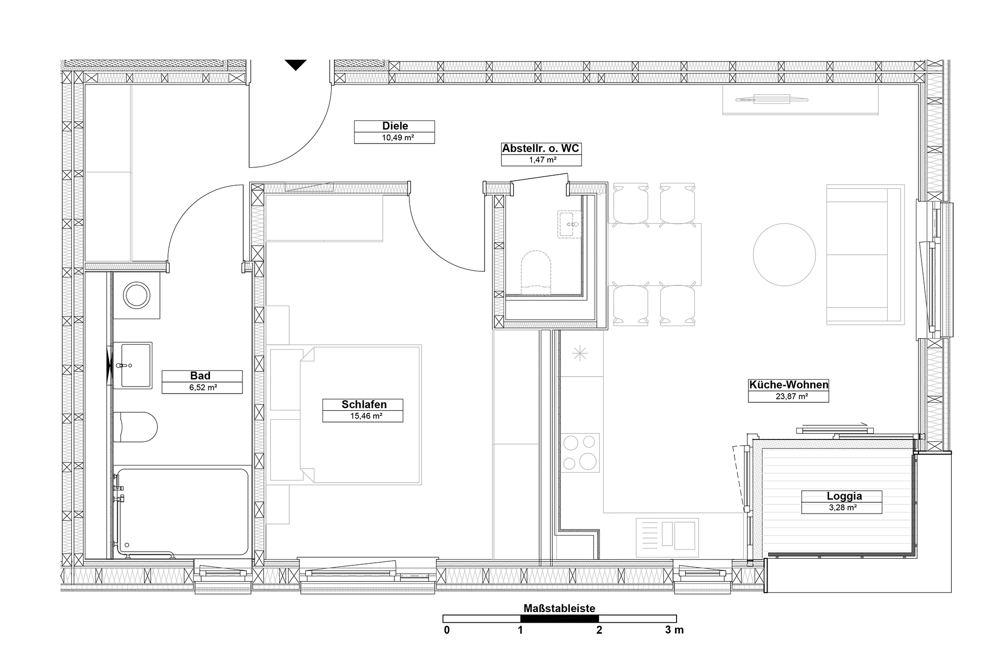
Wohnung H8 WE 05
Zurück
Details
Verfügbarkeit:
RESERVIERT
Haus:
Haus 8
Wohnung:
H8 WE 05
Geschoss:
1.OG
Wohnfläche:
59,45
Zimmer:
2,5
Loggia/Terrasse:
3,28
Grundriss
Preis:
Preis auf Anfrage
KONFIGURATOR
Kontaktieren Sie uns
Wir verwenden Cookies, um sicherzustellen, dass wir Ihnen die beste Erfahrung auf unserer Website bieten. Wenn Sie diese Website weiterhin nutzen, gehen wir davon aus, dass Sie mit ihr zufrieden sind.
Ok